Preview only — see all hotel photos
See all 19 photos
Pokaż hotel na mapie
50089....
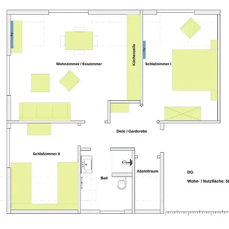
Strand Harlesiel leży w około 2 km, a Deutsches Sielhafenmuseum in Carolinensiel - zaledwie 10 min piechotą od Apartament 50089.. Carolinensiel o powierzchni 58 m².
Phanomania Carolinensiel znajduje się w niewielkiej odległości od tego apartamentu.
0-pokojowy apartament dysponuje balkonem, miejscem do siedzenia i w pełni wyposażoną kuchnią ze zmywarką, zapewniając najwyższy komfort. Apartament 50089.. oferuje zmywarkę i prysznic.
W skład obiektu noclegowego wchodzi pełnowymiarowa kuchnia z piekarnikiem i zmywarką do naczyń, umożliwiająca gościom samodzielne przygotowanie posiłków. Przystanek autobusowy Carolinensiel Alter Hafen jest w 600 metrach.
Wyposażenie
Udogodnienia
- Wi-Fi
- Prywatna plaża
- Rekreacja
- Hotel przyjazny dzieciom
- Zwierzęta nie są dozwolone
Udogodnienia
- Całkowity zakaz palenia
- Wi-Fi
- Parking
- Zakaz wprowadzania zwierząt
- Czujniki dymu
- Czajnik
- Przybory kuchenne
- Plaża
- Pole golfowe
- Ogrzewanie
- Kącik dzienny
- Stół
- Pralka
- Łóżeczka dla dzieci
Zasady pobytu
Mapa
Lokalne atrakcje
Lotniska
- Lotnisko Brema (122 km)
Opinie
100% zweryfikowane opinie gości